Как крепить поликарбонат к металлическому каркасу
В случае с металлическим каркасом – стальным или алюминиевым – желательно использовать соединительные профили, причем также с металлической основой. Они обычно выпускаются разъемными и имеют уплотнительные прокладки, которые также компенсируют различие между материалами в плане теплопроводности и теплового расширения.

В качестве подкладок можно использовать тонкие деревянные планки, металл, пластик, плотную резину. В последнем случае допустимо обойтись без герметизирующих накладок. Если герметизирующие накладки все-таки используются, они либо крепятся на клей, либо используется застывающий материал – силикон. Применение декоративных накладок не обязательно, но их наличие делает соединение более прочным и защищенным от протечек, а также улучшает эстетику сооружения.
С точки зрения экономии времени удобнее готовые разъемные соединительные профили из алюминия.

В этой схеме крепление идет через верхнюю крышку профиля, что обеспечивает плотную фиксацию панелей в профиле. Нижняя часть крепится к каркасу.
На чертеже ниже показаны другие схемы крепления поликарбоната к металлическому каркасу.

Последовательность работ такова:
- листы нарезаются в размер с учетом выбранного способа монтажа – внахлест или с помощью соединительного профиля;
- на подготовленный каркас (зачищенный, окрашенный антикоррозионным составом) укладываются листы поликарбоната и прижимаются временными креплениями;
- если планируется использовать соединительный разъемный профиль, вначале на арки/балки конструкции крепятся нижние планки профиля, после чего листы закрепляются верхней планкой. При монтаже внахлест точечным креплением наложенные друг на друга панели просверливаются насквозь вместе с каркасом и крепятся саморезами с термошайбами;
- устанавливается торцовый и (при необходимости) коньковый/пристенный/угловой профиль;
- точечным монтажом закрепляются панели по краю.
Правила монтажа
Для создания прочной конструкции из поликарбоната необходимо построить надежный каркас.
Рассмотрим рекомендации крепления поликарбоната к дереву:
При скатной конструкции поликарбонат должен лежать вдоль ската, при вертикальной — вертикально, при арочной — по дуге.
Важно учитывать термическое расширение материала при его креплении, чтобы избежать растрескивания и разгерметизации.
Резка пластин должна осуществляться в межреберном пространстве. Для этого нужно использовать циркулярную пилу или острый нож
При этом, пластина должна быть хорошо закрепленной на рабочей поверхности.
Для проделывания в материале отверстий нужно использовать дрель или сверло с диаметром, превышающим размер саморезов на 1-3 мм во избежание растрескивания при этом поликарбоната.
Перед креплением поликарбоната на дерево, следует хорошо обработать последний материал для предотвращения его гниения и деформации.
Листы поликарбоната должны располагаться так, чтобы под стыком двух пластин находилась опора.
При укладке первого листа на каркас, нужно проследить, чтобы его край выдавался вперед на 0,3-0,5 мм.
Между собой листы поликарбоната крепятся соединительной планкой, размещенной вдоль каркасных опор.
Чтобы оборудовать углы, применяют угловые поликарбонатные профили.
Советы и рекомендации
Поликарбонатный пластик, при всех своих преимуществах и достоинствах, остается достаточно мягким материалом, поэтому в процессе крепления покрытия на поверхность нельзя ставить никаких металлических предметов. Крепеж из стали, планки из алюминия, и даже песок, просыпавшийся с подошв обуви на поверхность застекленного каркаса, могут стать причиной появления глубоких царапин.
Поверхность сотового пластика уязвима
На первый взгляд, ничего страшного, но через короткое время царапины наполняются уличной пылью и становятся хорошо видны из-под навеса. Поэтому при монтаже листового поликарбоната необходимо использовать сменную обувь или застилать деревянные балки полиэтиленовой пленкой.
Если деревянный каркас примыкает к стене или крыше дома, то нижнюю планку, закрывающую торец сотового полотна, необходимо делать съемной. Так уж получается, что с кровли здания внутрь сот попадает конденсат, вода, пыль и микроспоры водорослей. Та часть сотового полотна, которая больше всего находится в тени, внутри зацветает зелеными микроводорослями. Избавиться от них можно только механическим путем, очисткой и промывкой раствором перекиси водорода.
Поликарбонат не рекомендуется красить, если после завершения работ по креплению материала появилась необходимость тонировать покрытие, то лучше всего использовать прозрачную полихлорвиниловую пленку. Этот же способ позволяет замаскировать сетку микротрещин, появившуюся на поверхности поликарбоната при неправильном креплении материала на жестком деревянном каркасе.
Уход за монолитным пластиком
Еще одно распространенное заблуждение связано с заделкой теплового зазора между листами литого пластика. Пытаясь сэкономить на покупке защитной планки, закрывающей стык, многие мастера предлагают выполнить крепление по скользящей схеме. В этом случае, перед тем как крепить на деревянном каркасе, боковые кромки поликарбоната срезают в ½ толщины ручным фрезером. Ширина образовавшейся полки 35-40 мм. После полировки войлочным кругом поликарбонат крепится на деревянный остов с перехлестом полок. Чтобы избежать затекания воды, линию контакта обрабатывают силиконовой смазкой. Идея выглядит отлично, но на практике подобный способ крепления не обеспечивает должной герметичности стыка.
Большие царапины на монолите можно заполировать ручной полиролью, а места на прижимной планке со шляпками саморезов рекомендуется заделывать любым гидроизолирующим составом, можно даже закрасить алкидной краской.
Независимо от схемы крепления, монолитный поликарбонат требует периодического ухода и обслуживания, удаления пыли, в среднем на литой материал уходит в 2-3 раза больше времени, чем на сотовый пластик. Поэтому, планируя постройку с крышей или навесом из монолитного листа, будет полезным обзавестись ручной автомобильной мойкой высокого давления. Более эффективного средства ухода за пластиком еще не придумали.
Обработка бруса антисептиком
Антисептические составы для древесины по способу защиты можно разделить на два класса:
- пропитки;
- пленкообразующие составы;
Первые при нанесении и последующем высыхании внедряются в брус на некоторую глубину и делают саму древесину непривлекательной для плесени и микроорганизмов. Вторые же образуют внешний слой, служащий барьером для всех «непрошеных гостей».
Антисептики
Для обработки каркаса для теплицы выбирайте составы на водной основе – их наносить легче. Из инструментов вам понадобится лишь маска-респиратор, ведро или иная емкость и кисточка. Последнюю можно заменить краскопультом – это существенно облегчит и ускорит процесс обработки древесины.
Шаг 1. Собирается нижняя обвязка, вертикальные стойки, верхняя обвязка и прочие элементы каркаса теплицы.
Сборка деревянного каркаса для теплицы
Шаг 2. Брус слегка зашлифовывается и очищается от грязи.
Шаг 3. Антисептик заливается в ведро или емкость от краскопульта, в зависимости от способа нанесения.
Шаг 4. Все видимые поверхности из дерева покрываются первым слоем антисептика.
Пример обработки деревянного бруса антисептиком Еще один способ обработки бруса антисептиком (в данном случае брус предназначен для сооружения фундамента теплицы)
Шаг 5. Выжидается время, пока состав высохнет.
Шаг 6. Предыдущие два шага повторяются снова.
Шаг 7. Третий слой наносится на те элементы каркаса, которые чаще контактируют с влагой – внешнюю сторону бруса и нижнюю обвязку.
Нанесенное таким способом антисептическое покрытие или пропитка способны успешно прослужить от 3 до 5 лет, в зависимости от типа состава. Затем его необходимо обновить, чтобы продлить срок службы каркаса теплицы из дерева.
Поликарбонатная теплица с каркасом из деревянного бруса
Еще одним способом уберечь древесину от гниения является обработка медным купоросом. Это весьма распространенное средство, доступное в любом магазине хозяйственных товаров.
Медный купорос
При этом брус следует обрабатывать до сборки каркаса, ведь медный купорос может повредить металлические предметы – уголки, саморезы, гвозди и так далее. Также при работе с ним нельзя использовать в качестве емкости железное ведро. Сам процесс происходит следующим образом.
Шаг 1. Просейте сухой медный купорос.
Просеянный порошок медного купороса
Шаг 2. Растворите его в теплой воде из расчета 100 г на 10 л.
Медный купорос нужно растворить в теплой воде
Шаг 3. Возьмите кисточку, обмакните в растворе и начните нанесение на брус, в том числе и на торцы.
Шаг 4. Обработайте еще раз те пиломатериалы, что будут использованы при сооружении фундамента и нижней обвязки.
При наличии времени и очень большой емкости, древесину можно замачивать, что даст хорошую пропитку на всю глубину бруса. Для этого заготавливается раствор медного купороса в пропорции 1:10 к воде. Затем все брусья укладываются в емкость и оставляются на 36-48 часов. После этого пиломатериалы высушиваются под навесом в течение 3-6 недель.
Пропитка бруса раствором медного купоросом
Итак, особенности поликарбоната, бруса и способов его защиты были рассмотрены. Теперь настало время обзора крепежа, используемого при монтаже СПК на деревянный каркас.
Крепление поликарбоната на теплицу
В таких сооружения часто используются арочные конструкции, как деревянные, так и металлические. При этом уложить листы поликарбоната необходимо с прижимом, так, чтобы они сразу получили необходимый изгиб. Очень полезен для временного или постоянного крепления панелей метод стяжки.
Как видно из схемы, стяжная лента состоит из двух фрагментов – короткого и длинного. Конец длинного фрагмента крепится к фундаменту или плоской стене теплицы, после чего к длинному фрагменту присоединяется короткий. Лента проводится поверх уже уложенных листов и первично притягивает панель к арочной конструкции. Короткий фрагмент закрепляется по месту. Далее постепенно стягивают короткий и длинный фрагменты, тем самым выполняя плотную посадку поликарбоната по дуге арки. После этого оцинкованную ленту прикрепляют к металлическому/деревянному каркасу с шагом 40…60 см обычными саморезами или саморезами с термошайбами. Подробнее о процессе монтажа в коротком видео.
Данный способ можно использовать как основной – при этом листы укладываются внахлест, а срок эксплуатации сооружения обычно составляет 2…5 лет. Можно также применять стяжные ленты как временный крепеж, вспомогательное средство при монтаже сложных криволинейных конструкций. Если стяжная лента используется как временное средство, желательно соединять отдельные панели профилем, разъемным или неразъемным.
На фото показан монтаж с применением неразъемного полимерного профиля.
Виды поликарбоната
Поликарбонат бывает монолитным и ячеистым.
Монолитные листы обычно гладкие, но выпускают также и гофрированные с особой волнообразной фактурой. Листы выпускаются разной толщины, в зависимости от этого они применяются для определенных целей.
Работая с монолитными пластинами нужно правильно рассчитать температурный зазор и правильно прикрепить края, так как из-за неправильной установки возможно термическое растрескивание листа или повреждение краев.
Сотовый (ячеистый пластик) имеет более сложную структуру. Он производится в виде листов с сечением, содержащим от одного и более ячеек. Эти ячейки именуют сотами. Они заполняются воздухом, делая материал очень легким.
Этапы и основные правила крепления поликарбонатного покрытия к деревянному каркасу ↑
1Этап подготовительный.
После того, как было приобретено необходимое количество поликарбоната (которое рассчитывается на основе размеров теплицы и стандартных объемов поликарбонатных листов), необходимо произвести его нарезку.
На заметку
Для покрытия крыши и установки стены теплицы можно использовать целый по длине и ширине лист поликарбоната. Но с учетом теплового расширения и сжатия данного полимерного материала рекомендуется нарезать его на отдельные прямоугольные детали, которые скрепляются между собой специальными элементами-профилями.
Для того, чтобы правильно нарезать/отрезать соответствующие детали для крыши и стен теплицы из поликарбонатного материала в соответствии с заданными размерами, следует соблюдать ряд следующих правил:
поликарбонатный лист необходимо положить на ровную поверхность, не допуская попадания камешков, инструментов, – которые могут помешать точной нарезке или повредить его;
чтобы листы разрезались ровно, нужно провести с помощью линейки линию маркером, причем, если линия будет проходить вдоль «сот» – можно обойтись без маркера;
на месте разреза сверху и снизу листа необходимо подложить бруски или доски – для свободного движения режущего инструмента, а также доски – если на лист будет необходимо встать и перемещаться вдоль разреза;
важно не повредить УФ-слой, который располагается только на лицевой стороне листа;
после резки нужно обязательно убрать опилки – например, струей сжатого воздуха с помощью обычного пылесоса;
упаковочную пленку, находящуюся снизу панели, убирают непосредственно перед укладкой листа на каркас, а верхнюю – после завершения монтажа.
kreplenie-1
kreplenie-2
2Процесс непосредственного крепления
Важно
Лист на крыше теплицы должен располагаться вдоль ската, а на стенах – вертикально, чтобы обеспечить естественное стекание влаги, появившейся внутри «сот» при перепаде температур.
Он включает несколько последовательных этапов:
- положите вырезанный кусок поликарбоната на раму, ориентируясь на «конек» крыши (нижний край может немного выступать – его потом можно подрезать ножом);
- отогните защитную пленку по краям листа на 8-10 см:
- нанесите на боковую торцевую часть самоклеящую ленту (не используйте канцелярский скотч!!!);
- закрепите саморезами соединительный профиль-основание по осевой линии профиля и вставьте в него одну из боковых сторон листа;
- на нижнюю часть листа приклейте перфорированную ленту и закройте ее торцевым профилем (он должен отступать от края листа примерно на 3 мм, в нем снизу можно просверлить несколько «дренажных» отверстий – для стекания влаги; причем, чем круче наклон крыши, тем лучше будет обеспечиваться отток влаги);
- для прикрепления нижней части листа к обрешетке сначала просверлите отверстия в поликарбонате – оно должно на 1-2 мм шире толщины ствола самореза, чтобы компенсировать тепловое расширение листа;
- вверните саморезы на расстоянии 15-30 см друг от друга;
- прикрепите сверху профиль-основания прижимной профиль-крышку (он должен «защелкнуться»).
Процесс укладки и крепления поликарбонатных деталей повторяется до конца крыши.
По такому же принципу происходит крепление вертикально расположенных листов, образующих стены теплицы, – не забываем о том, что на перпендикулярно расположенных краях каркаса панели соединяются/крепятся с помощью «углового» профиля.
3Завершающий этап –
Снимать верхнюю защитную пленку рекомендуется сразу же после монтажа поликарбоната, поскольку под воздействием солнца она может прилипнуть к материалу и ее будет трудно снять, а если использовать абразивные материалы – существует возможность повреждения УФ-слоя.
Надеемся, что приведенная в данной статье информация окажется полезной для тех, кто решил самостоятельно изготовить новую деревянно-поликарбонатную теплицу или покрыть поликарбонатом старую.
Что касается теплиц арочного типа и козырьков над крыльцом дома, то учитывая изгиб каркасных дуг и коэффициент изгиба поликарбонатного листа, его различную цветовую гамму, а также соблюдая перечисленные правила монтажа и рекомендации, вы сможете легко и быстро соорудить функциональный (защита от солнца, дождя, снега), легкий и прочный (при толщине 8-10 мм) и красивый (соответствующий общему внешнему дизайну и ландашфту прилежащей к дому территории) навес из поликарбоната.
https://youtube.com/watch?v=_8Ph2pPtJd8%3F
2022 stylekrov.ru
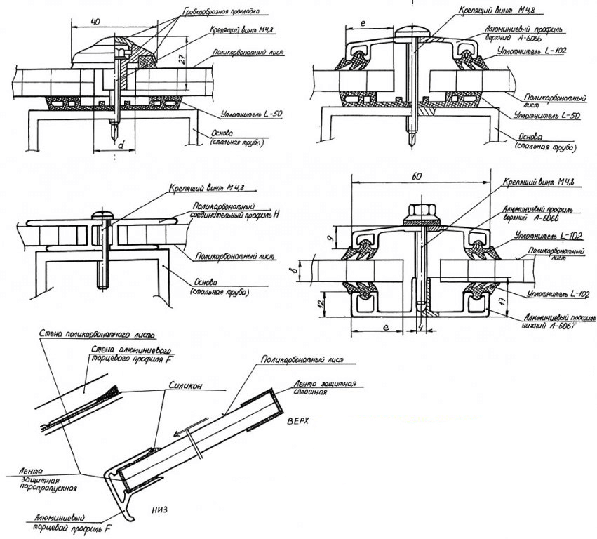
Способы крепления
Крепление точечным способом
Сотовый поликарбонат можно закрепить точечным способом. Такое крепление можно назвать самым простым. Для его выполнения необходимы обычные саморезы с термошайбой. Термошайбы позволяют создать хорошую герметизацию места, где они устанавливаются, к тому же устраняется «мостик холода», и саморез не сминает поверхность.
Требования к крепежуОбратите внимание! Длина пластиковой ножки термошайбы должна равняться толщине самого листа, а диаметр отверстия в листе должен на 2–3 мм превышать диаметр ножки. Шаг между креплением должен составлять 40 см, а от края до самореза допускается не менее 4 см
Саморез не должен слишком плотно входить в лист, так как он может легко его смять и повредить.Алюминиевый профиль
Стыки между листами закрываются с помощью специальных профилей, также при помощи данных профилей закрываются края. Профиль для этих целей может быть разъемным или же неразъемным.
Разъемный профиль
Профиль разъемный включает в себя две основные части – это база и крышка. Закрепление базы к каркасу выполняют, используя саморезы. Шаг между креплениями в данном случае составляет около 30 см, но не меньше. Лист просовывается в базу на 2 см. База закрывается крышкой. Крышка защелкивается достаточно легко.
Неразъемный профиль
Расчет размера теплового расширения
Коэффициент температурного расширения у ПК листов составляет 0,067 мм на 1 градус для 1 кв.м. площади. Это означает, что при изменении температуры на 1 градус, линейный метр листа уменьшается или увеличивается на 0,067 мм. Следует учесть, что у поликарбоната бронзового, серого, синего, черного цвета и других темных оттенков коэффициент равен 0,14 мм (вдвое выше, чем у прозрачных и белых листов).
Чтобы рассчитать размер теплового расширения нужно:
- Определить максимальный показатель перепада годовой температуры.
- Умножить полученный показатель на коэффициент линейного расширения для используемого вида поликарбоната.
Например, зазор при монтаже белых и прозрачных панелей в жесткой конструкции длиной 1 м при годовой разнице температур в 80 градусов (от -30 до +50) должен составлять 5,36 мм (0,067х1х80=5,36 мм).
Чем прикрепить поликарбонат к брусу?
Рассмотрим виды саморезов, которые применяют для прикрепления поликарбоната к брусу:
- Кровельные оцинкованные, имеющие шестигранную головку и шайбу.
- Имеющие резиновую термошайбу с большим диаметром крышки и прокладки, чем в предыдущем варианте.
- Оснащенные полимерной термошайбой, имеющие форму, которая похожа на зонтик.
Кроме того, определяя, чем крепить к дереву поликарбонат, не стоит забывать о соединительных профилях разъемного или неразъемного характера. Ими как бы зажимают листы материала.
Саморез является металлическим предметом, обеспечивающим крепление двух или нескольких материалов посредством винтового соединения. Прорезывание необходимой резьбы происходит в момент вкручивания.
Саморезы для дерева имеют больший шаг резьбы и меньшее количество витков в сравнении с теми, которые используются для металла. Благодаря этому снижается сила трения при вкручивании. Также отличительной чертой самореза для дерева нередко бывает наличие наконечника в виде сверла, благодаря которому облегчается вход в дерево.
Широко применяются кровельные саморезы. Они имеют большой диаметр стержня, что благоприятствует успешному вводу в твердые кровельные материалы. Такие элементы снабжены шестигранной головкой, поэтому при монтаже шуруповерт не соскакивает в сторону. Поверхность изделия обязательно цинкуют с целью защиты от коррозии. В комплекте всегда идет EPDM шайба, включающая оцинкованную крышку и тонкую резиновую прокладку.
Кровельные саморезы считаются самым дешевым крепежным элементом для поликарбоната.
Для решения проблемы с тепловым зазором нередко вместо обычной шайбы используется термошайба с большими толщиной и диаметром. Так, нагрузка распределяется по обширной площади и прогиб материала в месте вкручивания практически невозможен.
Саморез с шайбой из поликарбоната или другого полимера способствует надежному креплению и соблюдению достаточного термического зазора. Он имеет форму зонтика.
Расчет размера теплового расширения
Коэффициент температурного расширения у ПК листов составляет 0,067 мм на 1 градус для 1 кв.м. площади. Это означает, что при изменении температуры на 1 градус, линейный метр листа уменьшается или увеличивается на 0,067 мм. Следует учесть, что у поликарбоната бронзового, серого, синего, черного цвета и других темных оттенков коэффициент равен 0,14 мм (вдвое выше, чем у прозрачных и белых листов).

Чтобы рассчитать размер теплового расширения нужно:
- Определить максимальный показатель перепада годовой температуры.
- Умножить полученный показатель на коэффициент линейного расширения для используемого вида поликарбоната.
Например, зазор при монтаже белых и прозрачных панелей в жесткой конструкции длиной 1 м при годовой разнице температур в 80 градусов (от -30 до +50) должен составлять 5,36 мм (0,067х1х80=5,36 мм).
Монтаж монолитного поликарбоната
При создании теплиц используют как монолитный поликарбонат, так и сотовый. Первый представляет собой сплошной листовой светопрозрачный материал, который по внешнему виду напоминает стекло, но он намного легче и прочнее. Сотовый поликарбонат отличается от монолитного своей структурой. Его листы являются пустотелыми и имеют многослойную конструкцию с ребрами жесткости продольного вида. Монтаж монолитного поликарбоната осуществляют двумя способами.
«Влажный» способ крепления
Схема монтажа сотового поликарбоната.
Монолитный поликарбонат к теплице можно монтировать при помощи «влажного» способа. Для проведения работ потребуется следующее:
- полимерная замазка;
- силиконовый герметик;
- клей;
- кисточка;
- шпатель;
- профильные накладки.
Далее осуществляется покрытие кромки следующей части каркаса и так проделывается до тех пор, пока на него не будет полностью установлен весь поликарбонат. Проделав это, потребуется обязательно обработать все соединения герметиком. В основе его должен быть силикон. Это позволит предотвратить проникновение влаги в теплицу. При этом специалисты дополнительно рекомендуют на все стыки поликарбоната установить специальные профильные прокладки. Они позволят выполнить полную герметизацию помещения. Обычно такие изделия бывают выполнены из резины. Чтобы их установить, потребуется сначала внутреннюю часть обработать клеем, а потом зафиксировать на местах стыка листов монолитного поликарбоната. На этом работы будут завершены.
«Сухой» способ крепления
Фундамент под теплицу.
В ходе такого варианта монтажа поликарбоната к каркасу теплицы используются только механические крепежные элементы. Для проведения такой работы необходимо следующее:
- саморезы;
- шайбы;
- резиновые прокладки;
- дрель;
- отвертки;
- профилированные уплотнители.
Перед тем как крепить поликарбонат к каркасу, понадобится в нем создать отверстия. Если этого не сделать, при вкручивании крепежных элементов материал может деформироваться и треснуть. Использовать в ходе этого рекомендуется ручную дрель, а не электрическую, поскольку она обеспечивает сверление на небольших оборотах. На каждом листе монолитного поликарбоната понадобится сделать отверстия с шагом 500 мм. При этом от края они должны находиться на расстоянии не менее 20 мм. Диаметр отверстий необходимо делать чуть больше ножки крепежного элемента, поскольку из-за перепадов температуры листы поликарбоната расширяются. После чего можно начинать осуществлять монтаж монолитного материала на каркас теплицы. Используйте в ходе этого саморезы и шайбы, между ними нужно обязательно фиксировать резиновую прокладку. При этом затягивать их сильно не требуется.
Особенности эксплуатации листового поликарбоната на каркасах из пиломатериалов
Так выглядит забор из поликарбоната на деревянном каркасе
Главной особенностью монолитного или сотового поликарбоната,которую необходимо учесть до того, как приступить к монтажным работам, является деформация при нагревании и остывании (см.также статью «Крепление деревянного бруса к кирпичной стене – особенности технологии»).
По сути, при нагревании расширяется большая часть различных веществ, независимо от их консистенции и конфигурации. Но на полимерных листовых материалах изменения температуры сказываются особенно.
Поэтому, приступая к монтажу необходимо заготовить те крепёжные элементы,которые позволят выдержать компенсационный зазор между листовым материалом и поверхностью каркаса. В результате, при эксплуатации сооружения,полимерное покрытие нагреваясь от солнца не треснет и не пойдет волнами.
Как уже было сказано,поликарбонат может быть монолитными или сотовым. И та и другая модификация полимерных материалов отличается эластичностью, но при нагревании склонна растрескиваться. Помимо компенсационного зазора, для предупреждения растрескивания нужно правильно ориентировать листы относительно каркаса и правильно их резать.
Итак, после того как мы выяснили,что нужно знать выполняя монтаж поликарбоната на деревянный каркас,определимся с тем, какие инструменты нам потребуются.
Выбор инструментов и сопутствующих средств для проведения монтажных работ
Правильно выполнить монтаж нам позволит наличие следующих инструментов и приспособлений:
- шуруповерт с функцией дрели и сверло с диаметром 1 мм;
- саморезы для монтажа листового материала;
- обычные шайбы или специальные термошайбы (цена которых чуть выше) для выполнения компенсационного зазора;
- соединительный профиль, с помощью которого можно соединить соседние листы поликарбоната.
Особенности ориентирования и резки
Односкатный деревянный навес из поликарбоната своими руками собрать несложно
Для того чтобы монтаж сотового поликарбоната на деревянный каркас был успешным,нужно уметь правильно ориентировать и резать лист.
. В результате, сотовый поликарбонат можно согнуть, в то время как монолитный аналог устанавливается в не согнутом виде.
Ориентирование сотовых листов выполняется по направлению ребер жесткости. Расположение листа против направления ребер жёсткости может привести к тому, что материал треснет.
Кроме того, если в полости сот будет скапливаться конденсат, выведение влаги, при правильном ориентировании произойдёт само собой. Если же лист будет выгнут поперёк ребер жёсткости,вода будет застаиваться, что со временем приведёт к потемнению изначально прозрачных листов.
На фото- процесс резки поликарбоната
Оптимально для резки использовать циркулярные пилы с мелкозубчатыми кругами. Циркулярная пила при высокой скорости резки обеспечивает ровный рез, который не нуждается в дополнительной обработке. Если специальной циркулярной пилы в наличии нет, можно применить болгарку с диском для резки древесины.
Проведение монтажных работ
Структура материала на торцевом срезе
После того как мы выяснили, как резать и ориентировать листы полимерного материала,определимся с тем,как крепить сотовый поликарбонат к дереву.
Инструкция проведения монтажных работ несложная и вы наверняка справитесь с поставленной задачей самостоятельно без привлечения квалифицированных специалистов.
На первом этапе собираем каркас из пиломатериалов. Сборка каркаса напрямую зависит от того что планируется строить будь то забор, беседка или просто дачный навес.
На этом этапе важно подобрать и расположить пиломатериалы, так чтобы их кромка, к которой будет прилегать полимерный лист была как можно ровнее и не имела существенных изгибов
- На следующем этапе снимаем размеры с каркаса и переносим их на лист, который предстоит распилить.
- После того как размеры на листовом материале обозначены,приступаем к резке. При резке поликарбоната в обязательном порядке используем средства обеспечения личной безопасности (защитные очки и перчатки).
Лист подогнан по размеру каркаса
- Прикладываем подготовленный лист к каркасу и позиционируем так, как он будет окончательно установлен.
- По периметру листа там, где он примыкает к дереву, высверливаем отверстия диаметром не более 1 мм. Расстояние между отверстиями недолжно превышать 20 см. В подготовленные отверстия вкручиваем саморезы,предварительно надев на них шайбы.
Монтаж саморезов с термошайбами
Торцы соседних листов герметизируются посредством специальной самоклеющейся ленты с алюминиевой поверхностью. Поперечные торцы листа изолировать лентой нельзя, так как через отверстия должен вытекать конденсат.






























